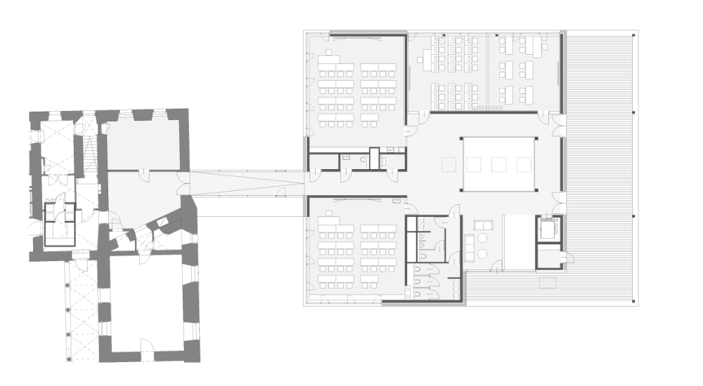
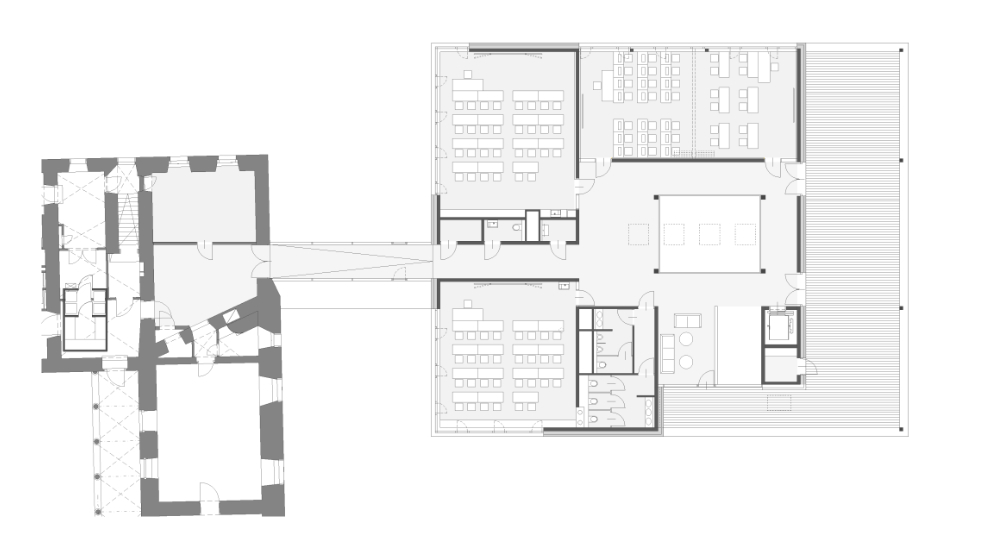
Fachschule Neudorf
Die Fachschule Neudorf benötigt aufgrund der stark steigenden Schülerzahlen zusätzliche Unterrichtsräume für Praxis- und Theorieunterricht. Der geplante Zubau ergänzt das denkmalgeschützte Schloss harmonisch, ohne es zu imitieren. So schafft der Neubau auf der Ostseite des Schlosses ein architektonisches Gegengewicht zum bestehenden Turnsaal und integriert sich sensibel in die umgebende Parklandschaft. Durch das Abrücken vom Schloss entsteht ein Hofraum als Lade- und Manipulationszone sowie ein kleiner Vorplatz, der den neuen Gebäudeteil klar definiert. Der Neubau ist zweigeschossig und wird über eine zweigeschossige Brücke mit dem Schloss verbunden. Diese Verbindung ermöglicht es auf beiden Ebenen einen fließenden Übergang zwischen Theorie- und Praxisräumen herzustellen. Das zentrale Atrium bildet das räumliche Herzstück des Entwurfs – ein heller, offener Raum, der sich zum Park hin öffnet und vielfältige Ein-, Durch- und Ausblicke bietet. Es fungiert als Verteiler-, Aufenthalts- und Pausenraum und verleiht dem Neubau eine großzügige, kommunikative Atmosphäre – etwas, das im beengten Schloss bislang fehlte. Im Erdgeschoß liegen die praktischen Unterrichtsbereiche und der Speisesaal. Eine vorgelagerte Terrasse im Park erweitert den Speisesaal ins Freie. Weiters sind hier auch die Umkleiden, Lager, Sozialraum und Entsorgungsbereich funktional angeordnet. Im Obergeschoss werden, über eine Galerie im Atrium die Klassen- und Gruppenräume erschlossen. Eine überdachte Terrasse dient als Freiklasse und kann später als Erweiterungsfläche ausgebaut werden. So verbindet der Entwurf Funktionalität, Nachhaltigkeit und architektonische Klarheit. Der neue Baukörper tritt als zeitgemäße Ergänzung zum historischen Schloss auf, respektiert dessen Maßstäblichkeit und Struktur, schafft aber gleichzeitig lichtdurchflutete, offene Lernräume, die den Schulalltag räumlich und atmosphärisch deutlich aufwerten.









