REGIONAL GERIATRIC CENTRE MAUTERN
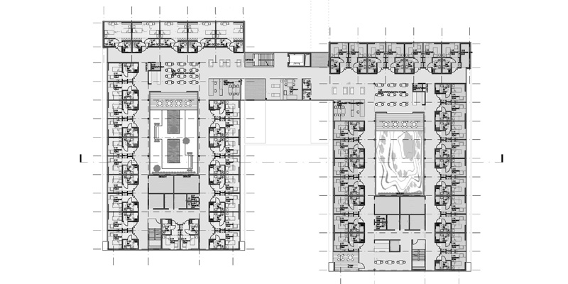
Clear, urban planning structures with compact, reassured building units, a strict architectural language ensure efficiency and endurance. The draft of a geriatric residential home in the park – with the aim at identity, harmony (need for rest and motion), safety and intimacy - is of architectural importance. Height and arrangment of the units of the new geriatric centre Mautern (in the plan-projection rectangles in sectio aurea) – refer to the scale of the surrounding rural building structure. By reflecting the landscape in the façade of the receded ground floor, the impression of hovering units in the park is created (de-materializing). They are connected with a transparent clasp, consisting of vertical development core with staircase and bed-elevator. The clasp also works as link to the planned extension in the north. The plan-layout of the living-units complies with balance: on the one hand economic rational odds, on the other by placing generous dimensioned inner courts to provide with daylight and natural aeration in the corridors and lounges – with an interplay of outlooks, insights and views through and seats in “niches”. The forecourts are two-storey and start in the first floor – thereby a direct exit from the living-units below to a clearly arranged garden with plants and paths is ensured. The lounges of the living-units, situated in the cores, with cantelivering, roofed terraces, orientate to the forecourts in the south.



